Atrakcyjne działki inwestycyjne pod zabudowę wielorodzinną – 24,2 ha – pod
Wrocławiem, MPZP, pozwolenie na budowę – BEZPOŚREDNIO.
Na sprzedaż wyjątkowy kompleks nieruchomości gruntowych o łącznej powierzchni
24,2 ha, położony w dynamicznie rozwijającej się części Środy Śląskiej ok. 20 km od
Wrocławia.
Atuty:
ogromny potencjał inwestycyjny – ponad 120 000 PUM (możliwość etapowania),
MPZP – zabudowa mieszkaniowa wielorodzinna,
pozwolenie na budowę,
dedykowany układ drogowy,
pełna infrastruktura w granicy inwestycji,
doskonałe połączenie komunikacyjne z Wrocławiem,
atrakcyjna alternatywa dla projektów na terenie Wrocławia.
Lokalizacja
Teren znajduje się w południowo-wschodniej części miasta, w rejonie „Winna Góra”:
centrum Środy Śląskiej – 1,5 km,
nowoczesna szkoła podstawowa – 0,5 km,
kompleks sportowo-rekreacyjny z basenem – 0,5 km,
komunikacja miejska – 0,5 km,
stacja kolejowa PKP – 1,9 km.
Infrastruktura drogowa
Kompleks posiada bezpośredni dostęp do infrastruktury komunikacyjnej :
ulica Winogronowa (nawierzchnia asfaltowa),
ulica Sikorskiego (asfalt),
nowo wybudowana ulica Jabłkowa (2025 r.).
Od południa teren sąsiaduje dodatkowo z planowaną północną obwodnicą miasta.
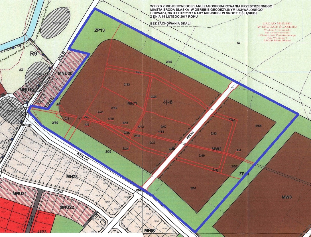
Charakterystyka terenu
Teren płaski, nieogrodzony.
Powierzchnia podzielona na 38 działek ewidencyjnych.
W obowiązującym MPZP grunt oznaczony jest jako:
o MW1 / MW2 – tereny zabudowy mieszkaniowej wielorodzinnej
o ZP13 / ZP14 – tereny zieleni urządzonej.
Infrastruktura techniczna
Pełne media w drogach przylegających do działek (ul. Winogronowa, Sikorskiego
i Jabłkowa): woda, kanalizacja sanitarna i deszczowa, energia elektryczna.
Inwestor uzyskał warunki techniczne przyłączenia do sieci
Wymagane zgody na budowę sieci wodociągowej, kanalizacyjnej,
teletechnicznej, deszczowej, linii energetycznej i oświetlenia ulicznego w ramach
nowoprojektowanych dróg gminnych.
Status prawny i inwestycyjny
Koncepcja zagospodarowania dla10 etapów inwestycji.
Uzyskane pozwolenia na budowę m.in. 6 budynków wielorodzinnych z usługami i
garażami (etap 1 i 2): łączna PUM 7 558,8 m² + PUU 2 356,86 m².
Ponadto uzyskano decyzję na budowę drogi wewnętrznej wraz z pełną
infrastrukturą.
Całkowity potencjał inwestycyjny terenu oszacowano na ok. 120 000 m² PUM i ok. 9 000
m² PUU.
Cena: 62 500 000,00 PLN netto
Rodzaj oferty: Sprzedaż bezpośrednia
Dostępność: od zaraz
Idealna oferta dla deweloperów lub funduszy inwestycyjnych poszukujących rozległego,
przygotowanego gruntu pod realizację wieloetapowego osiedla mieszkaniowego
wielorodzinnego w bliskim sąsiedztwie Wrocławia.
Zapraszam do kontaktu w celu uzyskania szczegółowej dokumentacji (PZT, WZ,
PNB, warunki techniczne):
T: 887 459 952
T: 887 459 925
biuro@pddsa.com.pl
Niniejsze ogłoszenie ma jedynie charakter informacyjny i nie stanowi oferty w rozumieniu art. 66 i nast. Kodeksu cywilnego. Celem jest zaproszenie zainteresowanych do kontaktu w celu podjęcia ewentualnych negocjacji.
- Principal and Interest
- Property Tax
- HOA fee




















