OFERTA BEZPOŚREDNIO OD WŁAŚCICIELA
Do wynajęcia pomieszczenia produkcyjno- magazynowe w Kaliszu Kaszubskim, gmina Dziemiany. Doskonałe na stolarnię, lakiernię, warsztat samochodowy, małą produkcję, magazyn. 2000 m2 plac przed budynkiem.
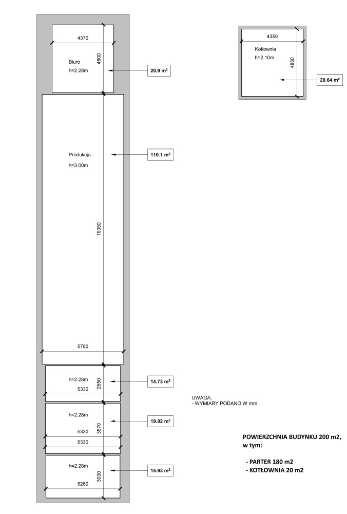
• Powierzchnia całkowita 200m2
• Pomieszczenie główne hala 110m2, wysokość 3 m
• Pomieszczenie biurowe 21m2, pomieszczenie socjalne16 m2 oraz 2 pomieszczenia techniczne 19 i 15 m2 oraz kotłownia 20 m2
• Wyposażony w instalację elektryczną, cieplną (nagrzewnice Volcano) i wodno-kanalizacyjną
• Ogrzewania: piec na pelet i drewno
• System wentylacyjno-odpylający
• Wyciąg lakierniczy
• System rozprowadzający sprężone powietrze
• Podłoga betonowa, w pomieszczeniach socjalno- biurowych gres i panele
• Największe drzwi szer.2,75m wys. 3,5 m
• we wszystkich pomieszczeniach znajdują się okna
• powierzchnie w dobrym stanie technicznym
• czynsz miesięczny 3150 PLN+ VAT+ media wg zużycia
• wymagana kaucja (2 miesiące+ VAT)
• umowa na czas nieznaczony
- Principal and Interest
- Property Tax
- HOA fee










