Na sprzedaż przestronny, piętrowy i podpiwniczony dom wolnostojący o powierzchni użytkowej ok. 130 m², położony na narożnej działce o powierzchni 726 m². Nieruchomość oferuje aż 7 ustawnych pokoi i dwie łazienki, co daje ogromne możliwości aranżacyjne – zarówno jako dom rodzinny, jak i inwestycja pod wynajem lub działalność usługową. Dodatkowym atutem są budynki gospodarcze o powierzchni 70 m² (2 z nich przystosowane do użytku mieszkalnego) oraz garaż w bryle budynku.
Lokalizacja
Nieruchomość jest położona w spokojnej okolicy domów jednorodzinnych na obrzeżach północnej części miasta i jest to niewątpliwie jej duży atut. Jednocześnie jest w bardzo bliskiej odległości od centrum, do którego można dojść pieszo w ciągu 10-15 min. Przystanek autobusowy w bardzo bliskiej odległości pozwala w łatwy i szybki sposób skomunikować się z innymi częściami miasta. Bliskość nowego przystanku kolejowego PKP oraz trasy S14 to świetna możliwość na szybkie dojazdy do Łodzi i unikanie korków.
Najważniejsze odległości:
przystanek autobusowy – 150m
przystanek kolejowy Pabianice Północne – 300m
Biedronka – 550m
szkołą podstawowa, przedszkole, liceum, dom kultury – 600m
piekarnia – 700m
przystanek tramwajowy – 800m
przychodnia zdrowia – 900m
centrum handlowe Echo – 950m
Dom
Dom z lat 70 o powierzchni użytkowej około 130 m² zbudowany z czerwonej cegły, dach pokryty papą (kominy po remoncie – maj 2024). Ponadczasowy układ typu "kostka" z dużymi, ustawnymi pokojami na dwóch kondygnacjach. Budynek jest w pełni podpiwniczony, z garażem w bryle. Okna plastikowe, ogrzewanie centralne – piec węglowy. Istnieje możliwość przyłączenia do sieci gazowej – skrzynka gazowa na terenie posesji.
Poniżej dokładny rozstaw i metraże pomieszczeń:
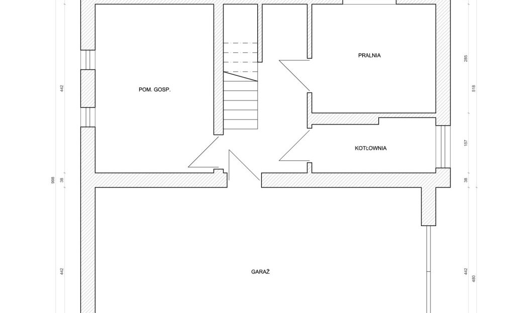
Piwnice:
garaż
kotłownia
pralnia
pomieszczenie gospodarcze
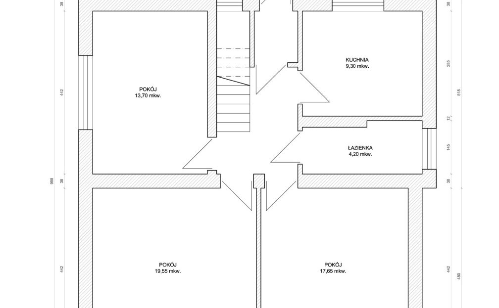
Parter
pokój 1 – 19,55 m²
pokój 2 – 17,65 m²
pokój 3 – 13,7 m²
kuchnia – 9,3 m²
łazienka – 4,3 m²
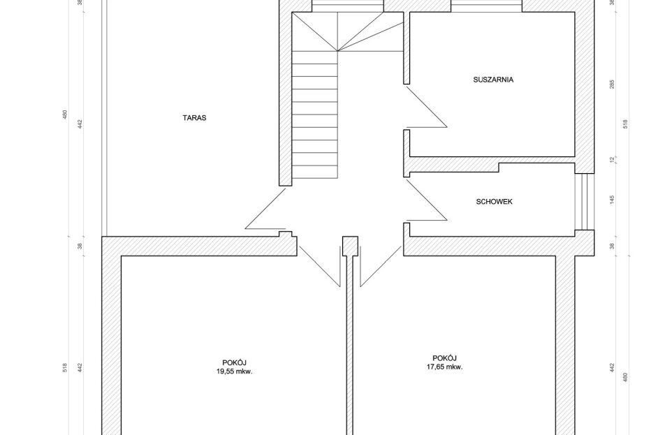
Piętro
pokój 1 – 19,55 m²
pokój 2 – 17,65 m²
pokój 3 (suszarnia) – 9,3 m²
pokój 4 (oszklony i zadaszony taras) – 13,7 m²
łazienka – 4,3 m²
Działka
Działka narożna z wjazdami z dwóch stron o powierzchni 726 m², ogrodzona częściowo betonowym płotem oraz siatką. Na działce znajdują się budynki gospodarcze (70 m²) z opcją przekształcenia ich na mieszkalne. Są też liczne nasadzenia (wiśnie, grusza, śliwka, rozległe krzaki jeżyn) oraz rząd wysokich tuj zapewniających prywatność. Podwórko częściowo wyłożone kostką brukową. W centralnej części działki znajduje się szklarnia osadzona na betonowych fundamentach.
Informacje dodatkowe
Pełna własność – księga wieczysta. Dostępne wszystkie media: prąd, woda, kanalizacja, gaz. Dom zbudowany i zamieszkiwany od początku przez jedną rodzinę – dostępny od zaraz.
Główne atuty nieruchomości:
lokalizacja – blisko centrum miasta i wyjazdu na Łódź (200m do S14 lub stacji PKP)
7 pokoi do dowolnej aranżacji – usługi, pokoje mieszkalne
pełne media łącznie z dostępem do sieci gazowej
pomieszczenia gospodarcze z opcja przekształcenia na mieszkalne
- Principal and Interest
- Property Tax
- HOA fee






































