DOMY NAD ZALEWEM – GOTOWE DO ZAMIESZKANIA
Zapraszamy do zapoznania się z ofertą gotowych do zamieszkania domów w kameralnej inwestycji Domy Nad Zalewem. Realizacja obejmuje trzy budynki mieszkalne: dwa budynki dwulokalowe oraz jeden budynek wolnostojący. Inwestycja została zakończona w 2025 roku.
DOSTĘPNE LOKALE
Lokal A1 – gotowy do zamieszkania
Dom wolnostojący B1 – gotowy do zamieszkania
LOKALIZACJA
Nieruchomości położone są w Jerzykowie przy ul. Nad Zalewem, około 200 m od Zalewu Kowalskiego. Okolica charakteryzuje się niską zabudową jednorodzinną oraz bliskością terenów zielonych.
W sąsiedztwie znajduje się Puszcza Zielonka, oferująca liczne trasy spacerowe i rowerowe oraz możliwość aktywnego wypoczynku na świeżym powietrzu.
DOJAZD
ok. 18 km do Poznania,
ok. 10 km do Pobiedzisk i Swarzędza.
INFRASTRUKTURA
W najbliższej okolicy dostępne są m.in.:
sklepy i supermarkety,
dworzec PKP i przystanki autobusowe,
szkoły i przedszkola,
restauracje, apteki, banki,
plac zabaw i siłownia plenerowa,
gabinety lekarskie,
stadniny koni,
lasy i jeziora.
OPIS DOMU
Powierzchnia użytkowa: 85,48 m²
(91,25 m² po podłodze, bez uwzględnienia skosów)
Domy posiadają funkcjonalny układ pomieszczeń oraz dodatkową przestrzeń strychową.
UKŁAD POMIESZCZEŃ
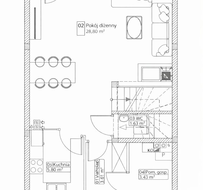
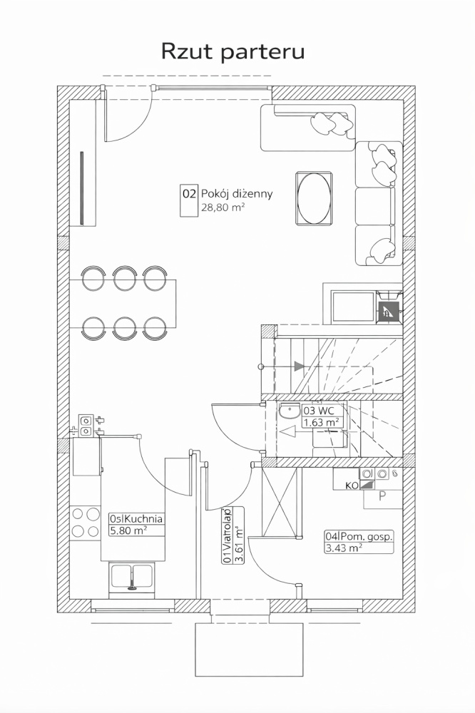
PARTER – 44,63 m²
wiatrołap – 3,97 m²
salon – 29,8 m²
kuchnia – 5,8 m²
WC – 1,63 m²
pomieszczenie gospodarcze – 3,43 m²
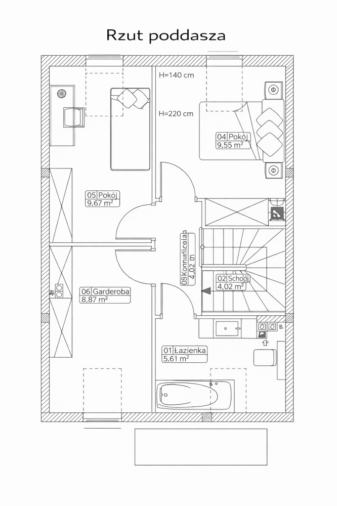
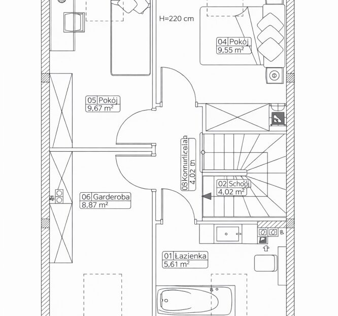
PODDASZE – 40,85 m²
trzy sypialnie – 9,55 m² | 9,67 m² | 8,87 m²
łazienka – 5,64 m²
komunikacja – 3,10 m²
schody – 4,02 m²
NAJWAŻNIEJSZE INFORMACJE
– działka przypisana do lokalu, w tym ogród ok. 240 m²,
– ogrzewanie podłogowe na całym parterze oraz w łazience na poddaszu,
– okna PCV 6-komorowe, 3-szybowe oraz okna dachowe kolankowe,
– indywidualny piec gazowy dwufunkcyjny Viessmann,
– kanalizacja miejska,
– światłowód,
– miejsca parkingowe,
– dojścia i podjazdy z kostki brukowej.
CENA
Budynki dwulokalowe:
Lokal A1 – 599 000 zł
Lokal A2 – zarezerwowany (609 000 zł)
Lokal A3 – sprzedany (Cena: 599 000 zł)
Lokal A4 – sprzedany (Cena: 589 000 zł)
Budynek wolnostojący:
Lokal B1 – 659 000 zł (wcześniej 669 000 zł)
Kupujący zwolniony z podatku PCC (2%).
INFORMACJE DODATKOWE
Inwestycja Domy Nad Zalewem to propozycja dla osób poszukujących domu w spokojnej okolicy, z dogodnym dojazdem do Poznania oraz dostępem do terenów zielonych.
Zapraszamy do kontaktu i umówienia prezentacji.
Niniejsze ogłoszenie nie stanowi oferty w rozumieniu przepisów Kodeksu cywilnego.
- Principal and Interest
- Property Tax
- HOA fee




























