Polecam 2 pokojowe mieszkanie na 3 piętrze w bloku przy ulicy Budowlanych w Pile.
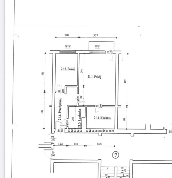
Powierzchnia 35,60 m2 na którą składają się:
1) Pokój a aneksem kuchennym o łącznej powierzchni 20,90m2 – w cenie meble kuchenne ze sprzętem AGD ( kuchenka gazowo-elektryczna, okap, lodówka) komoda, szafa, kanapa.
2) Sypialnia o powierzchni 6,50m2 wyposażona w łóżko
3) Łazienka z WC o powierzchni 2,80m2 w płytkach . Na wyposażeniu prysznic oraz pralka
4) Przedpokój o łącznej powierzchni 5,40 m2.
Do mieszkania przynależy piwnica o powierzchni 2,70 m2
Bardzo niski czynsz administracyjny.Przy 1 zamieszkującej osobie wynosi jedyne 395,74 zł z zaliczką na ogrzewanie, zaliczką na wodę zimną odraz odprowadzanie ścieków 4 m3, wywóz nieczystości. Do każdej kolejnej osoby należy doliczyć 98 zł kosztem zaliczek na wodę oraz wywóz nieczystości.
Mieszkanie przez długi czas stanowiło znakomitą lokatę kapitału, dlatego dla nowonabywcy będzie stanowiło idealną inwestycję pod wynajem ze względu na niskie koszty utrzymania.
Jednakże dla singla bądź pary będzie również idealnym wyborem w zakupie swojego pierwszego M2.
W mieszkaniu instalacje miedziane. Piecyk gazowy na podgrzanie wody wymieniony około 3 lata temu.
Miejsca parkingowe pod blokiem.
Budynek ocieplony. Klatka schodowa wyremontowana.
Termin wydania do uzgodnienia.
Polecam i zapraszam do kontaktu.
*Dołączony rzut ma charakter podglądowy układu mieszkania.Obecnie pokój połączony z kuchnią.
- Principal and Interest
- Property Tax
- HOA fee
































