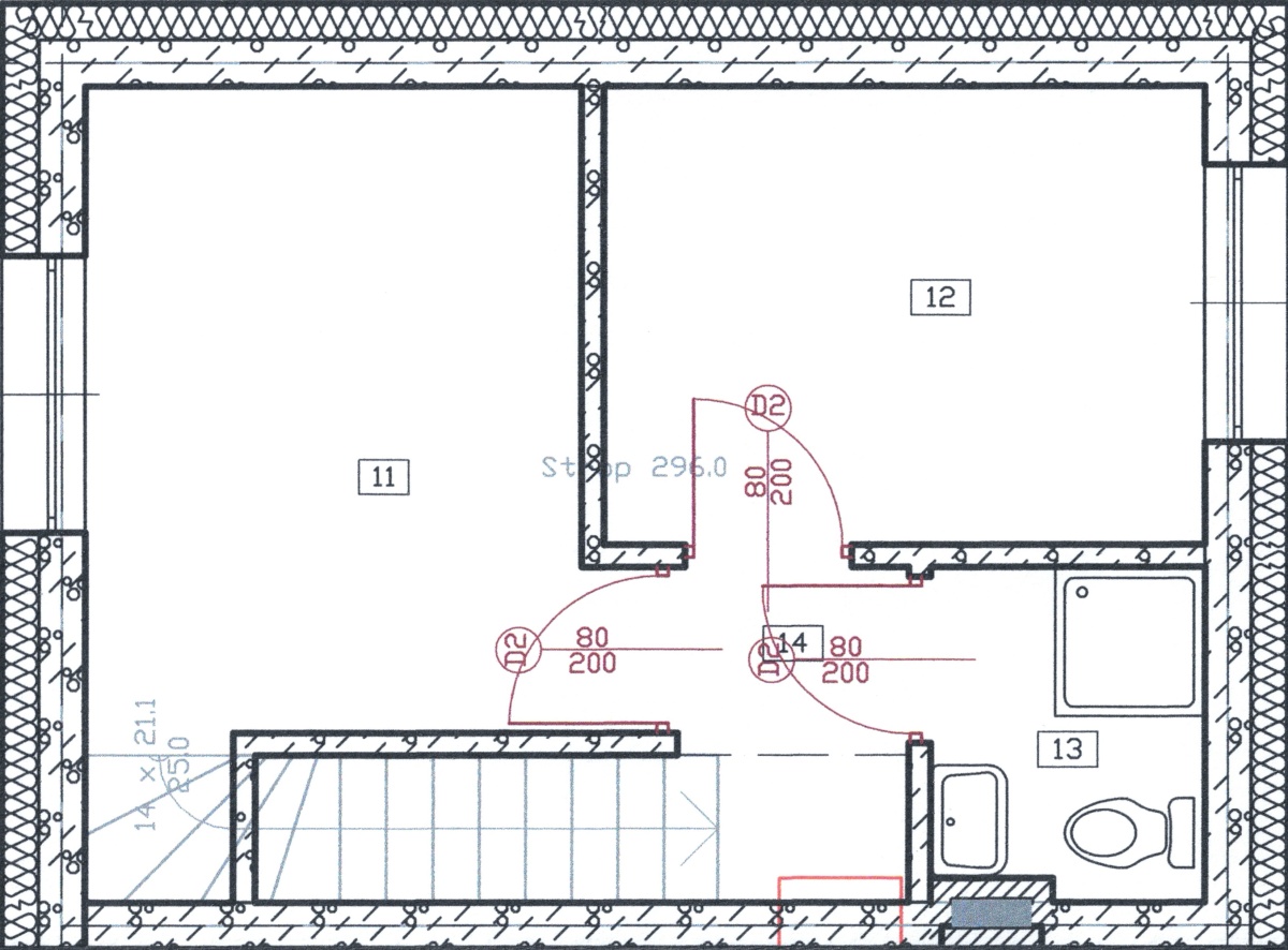
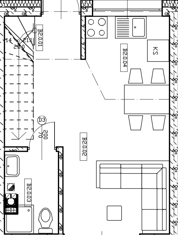
Firma Budujemy z Pomysłem z przyjemnością informuje o rozpoczęciu sprzedaży 6 nowoczesnych dwukondygnacyjnych mieszkań, każde o powierzchni 53 m².
Układ mieszkania:
-Parter: przestronny salon z otwartą kuchnią oraz łazienka
-Piętro: dwie sypialnie oraz łazienka
Standard wykończenia:
-Tynki gipsowe oraz kamienne parapety wewnętrzne w kolorze białym
-Gazowy oszczędny piec kondensacyjny
-Ogrzewanie podłogowe na całej powierzchni mieszkania
-Drewniane schody wykonane na zamówienie przez stolarza
-Budynek wykonany z betonu komórkowego (suporeks)
-Elewacja ocieplona styropianem (20 cm), tynki sylikatowo-silikonowe w odcieniach szarości i bieli
-Granitowe parapety zewnętrzne
-Okna trzyszybowe, na zewnątrz kolor antracyt, wewnątrz białe
-Dach dwuspadowy pokryty blachą na rąbek (antracyt)
-Każde mieszkanie posiada taras oraz ogrodzony ogródek
-Prywatne miejsce parkingowe w cenie mieszkania
Lokalizacja:
Budynek zlokalizowany przy Alei Wolności w Rzepinie, naprzeciwko parku z fontanną.
Zdjęcia przedstawiają realny postęp prac.
Zainteresowanych zakupem zapraszamy do kontaktu: tel.: 504 151 333
- Principal and Interest
- Property Tax
- HOA fee
































