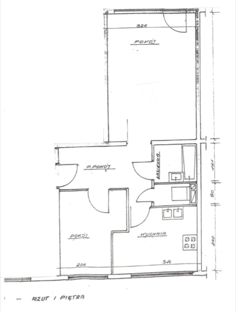
Oferuję na sprzedaż komfortowe dwupokojowe mieszkanie na osiedlu Zazamcze przy ulicy Hożej.
Mieszkanie o powierzchni 39 m2, usytuowane na pierwszym piętrze czteropiętrowego bloku .
Mieszkanie składa się dwóch niezalenych pokoi w tym jeden z balkonem, jasnej kuchni z oknem
przedpokoju oraz oddzielnych łazienki i wc.
Niewątpliwymi atutami oferowanego mieszkania są świetny rozkład pomieszczeń wszystkie są niezależne i dobrze ustawne .
Stosunkowo niskie opłaty administracyjne z wliczonymi zaliczkami na ogrzewanie ora bieżąca wodę, wywóz nieczystości oraz inne opłaty związane zużytkowaniem nieruchomości.
Świetna lokalizacja w bezpośrednim sąsiedztwie lasu, terenów rekreacyjnych oraz niezbędnej infrastruktury jak sklepy, szkoła , przedszkole oraz dworzec.
Mieszkanie do wydania od zaraz .
- Principal and Interest
- Property Tax
- HOA fee














