3 DOMY Z WIDOKIEM NA GÓRY | ISTEBNA – ZŁOTY GROŃ
Marzysz o inwestycji, która łączy zachwycającą architekturę z realnym zyskiem? Poznaj "Złotą Polanę" – kompleks trzech domów z bali, położonych na widokowej działce pod szczytem Złotego Gronia w Istebnej. To unikalna okazja na zakup nieruchomości w sercu Beskidów z gotowym planem na rentowny wynajem.
Lokalizacja: Istebna – Złoty Groń
Liczba domów: 3 domy z projektu L-116 (116 m² każdy)
Stan: Surowy zamknięty (domy będą zamszone, wyszlifowane, zalakierowane i okute)
Działka: 2819 m² – podzielona na 3 części
DANE TECHNICZNE:
Materiał budynku: Świerk istebniański, bale prostokątne 25×30 cm
Dach: Blacha z posypką bazaltową na stalowym rdzeniu pokrytym powłoką antykorozyjną
Okna: Trzyszybowe PCV
Ogród: Usztywniona skarpa, trawa, ogrodzenie z dębowym płotem
Media: Szambo, prąd, woda
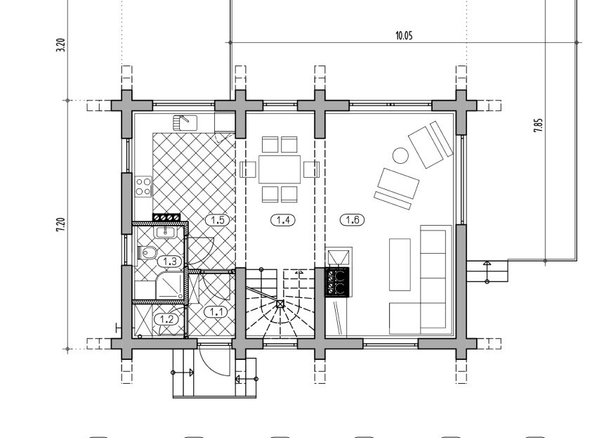
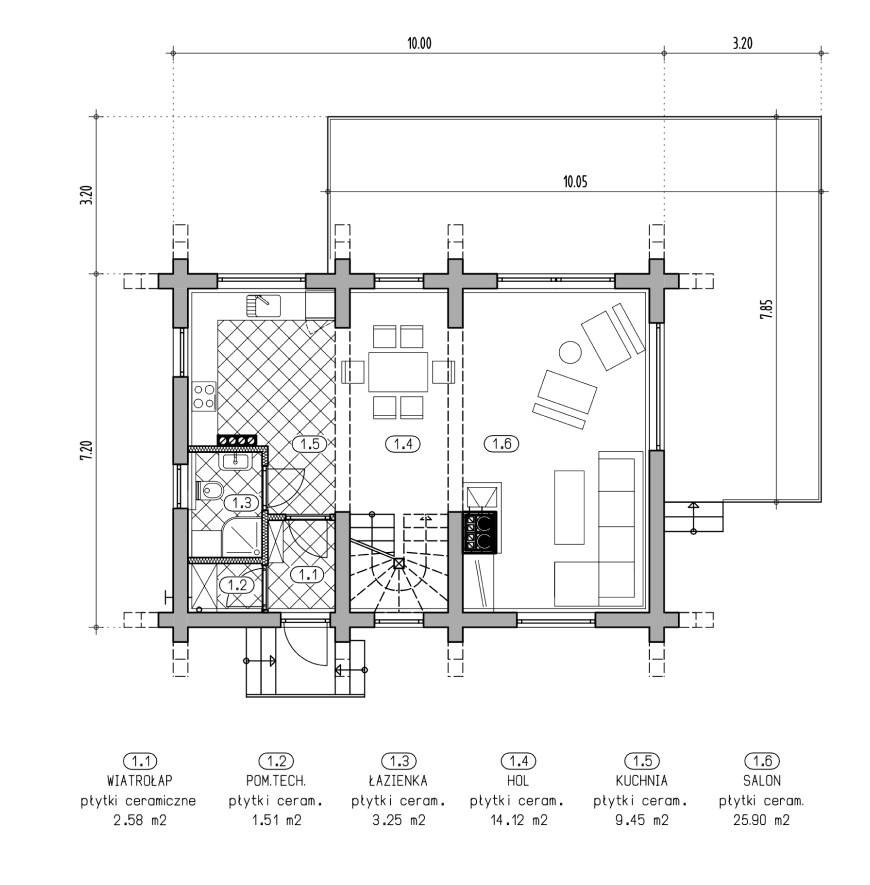
UKŁAD DOMU (116 m²)
Parter:
Wiatrołap, pom. techniczne, łazienka, hol, kuchnia z jadalnią, przestronny salon z dużym oknem
Poddasze:
3 sypialnie, łazienka, komunikacja
CO ZYSKUJESZ?
Inwestycja gotowa do wykończenia i szybkiego uruchomienia wynajmu
Widok na Beskidy, a przy dobrej pogodzie również Tatry
Komfortowy dojazd – droga asfaltowa i wewnętrzna brukowana
Ogrodzona działka, miejsca parkingowe, usytuowanie pod stokiem narciarskim
Rentowność – skontaktuj się z nami, aby otrzymac informacje na temat analizy rentowności inwestycji
OFERUJEMY RÓWNIEŻ POMOC W WYKOŃCZENIU I PEŁNYM URUCHOMIENIU BIZNESU NAJMU KRÓTKOTERMINOWEGO – OD A DO Z!
Nie przegap tej wyjątkowej okazji!
Zadzwoń i umów się na prezentację!
- Principal and Interest
- Property Tax
- HOA fee



























