Jeżeli szukasz ciekawego mieszkania w samym centrum Olsztyna to zapraszam Cię do oglądania komfortowego apartamentu nr A3 o pow. 67,47 m2 położonego przy ul. Dąbrowszczaków 8/9. Ulica ta jest pełna historycznego uroku, otoczona zielenią, tętniąca życiem za dnia, cicha i nostalgiczna wieczorami, zlokalizowana na obrzeżu Starówki. Bliskość urzędów, sklepów, restauracji, szkół oraz głównego węzła komunikacji daje możliwość pełnego korzystania z uroków miasta.
Budynek unikat z przełomu lat 50-60, laureat konkursu „Mistrz Roku 1961” !
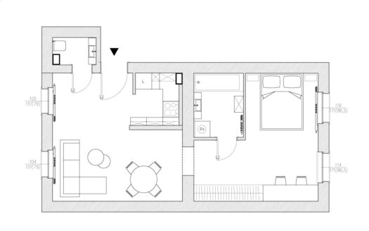
III piętro. Przestronny i funkcjonalny układ: 3 niezależne pokoje, kuchnia, łazienka z wc, korytarz. Duże okna i słoneczne wnętrze dają energię do życia. Dwa wyjścia na dużą loggię, która po aranżacji może być przytulnym miejscem z piękny widokiem na poranną kawę lub popołudniowy relaks. Widok na skwer zieleni koło zabytkowego liceum.
Mieszkanie wykończone, dostępne od zaraz, gotowe do wprowadzania. Jednak jeżeli masz ochotę na zmiany – układ daje wiele możliwości własnej aranżacji i dostosowania do indywidualnych potrzeb. Zobacz rzut, obejrzyj naszą wizualizację.
Własność z księgą wieczystą. Wspólnota. Ogrzewanie centralne gazowe (kotłownia w budynku) , ciepła woda piecyk gazowy.
Aktualnie realizujemy prace modernizacyjne – odnowiony zamykany śmietnik, świeżo ocieplona ściana boczna budynku, planowany remont loggii, klatki schodowej, podwórka oraz nowa brama ( podwórko będzie zamykane)
Sprzedaż bezpośrednia ! Zapraszam do kontaktu ! Z chęcią dokonam prezentacji nieruchomości !
Justyna 609 558 572
UWAGA: Posiadamy w tym budynki inne mieszkania 3-pokojowe i 2-pokojowe. Możliwość wykorzystania na biura ! Możliwość wykorzystania na mieszkania do wynajęcia ! Pamiętaj wyjątkowa i unikalna lokalizacja !
- Principal and Interest
- Property Tax
- HOA fee

























