Oferuję do sprzedaży trzy pokojowe mieszkanie na trzecim piętrze w zadbanym czteropiętrowym budynku przy ulicy Czarnowiejskiej obok parku Wisławy Szymborskiej
Oferta na wyłączność biura nieruchomości Nieruchomości Profesjonalnie. Pełny opis na stronie biura nieruchomosciprofesjonalnie pl
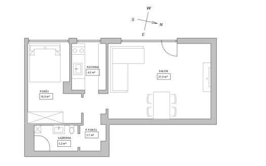
Mieszkanie o powierzchni wg Księgi Wieczystej, 64 metrów kwadratowych, na którą składa się:
– aneks kuchenny z jadalnią umiejscowiony w dawnym przedpokoju o powierzchni ponad 13 metrów i wymiarach 4,5 na 3 metrów
– mniejszy pokój o powierzchni prawie 10 metrów i wymiarach 3 na 3,3 metra
– średni pokój z balkonem o powierzchni około 15 metrów kwadratowych i wymiarach 5 na 3 metry
– największy pokój o powierzchni ponad 20 metrów i wymiarach 5 na 4 metry
– łazienka o powierzchni około 3 metrów
– oddzielna toaleta o powierzchni około 1,5 metrów.
Do mieszkania przynależy piwnica o powierzchni 4 m – powierzchnia z KW to powierzchnia mieszkania wraz z piwnicą.
Bez większych nakładów finansowych można zmienić układ mieszkania
-przenosząc aneks kuchenny do najmniejszego, północnego pokoju. W takim oryginalnym układzie uzyskujemy mieszkanie dwupokojowe z oddzielną kuchnią i dużym reprezentacyjnym holem wejściowym.,
-lub można przenieść aneks kuchenny do średniego pokoju z balkonem i uzyskać w ten sposób trzy pokojowe mieszkanie oraz duży reprezentacyjny hol wejściowy.
Takie układy zdecydowanie sprawdzą się przy zakupie mieszkania na własne potrzeby mieszkaniowe.
Wysokość pomieszczeń 2, 75 metra zapewnia bardzo wysoki komfort mieszkania.
Mieszkanie po kapitalnym remoncie wykonanym w 2008 roku. W trakcie remontu wymienione zostały wszystkie instalacje: elektryczna, wodna, kanalizacyjna; oraz wymienione zostały okna i drzwi balkonowe.
Mieszkanie remontowane było z przeznaczeniem na wynajem. Pod tym kontem zostało wyposażone i umeblowane. Wymienione drzwi wewnętrzne posiadają zamki co pozwala wynajmować mieszkanie na pokoje.
Aneks kuchenny umeblowany meblami na wymiar – wyspa, z wbudowanymi sprzętami AGD, zmywarką, kuchenką dwu płytową, lodówką. Nad wyspą zamontowany został sufit podwieszany z wmontowanymi reflektorami halogenowymi. Istnieje możliwość podłączenia większej czteropłytowej płyty grzewczej oraz piekarnika.
W aneksie kuchennym na podłodze położone są płytki ceramiczne.
W średnim i największym pokoju pozostawiono parkiet, w najmniejszym pokoju położone są panele. W całym mieszkaniu ścianach wykonano gładzie gipsowe i pomieszczenia zostały pomalowane farbami wysokiej jakości.
Każdy z pokoi wyposażony jest w duże łóżko, stoliki, biurka, szafki.
W łazience znajduje się umywalka, oraz kabina prysznicowa. Toaleta znajduje się w oddzielnym pomieszczeniu. W łazience i w toalecie na ścianach i podłodze położone są płytki ceramiczne.
Ogrzewanie z sieci miejskiej, ciepła woda z piecyka gazowego.
Mieszkanie dwustronne o południowej ekspozycji dwóch większych pokoi i północnej pokoju najmniejszego. Południowe okna i balkon wychodzą na ulicę a północne na wewnętrzny dziedziniec budynku.
Czynsz około 1000 złotych miesięcznie przy pełnym obłożeniu mieszkania.
Mieszkanie położone jest na trzecim piętrze czteropiętrowego budynku wybudowanego w 1950 roku. Budynek odnowiony i zadbany. W latach poprzednich wykonano izolację ścian budynku i położone zostały nowe tynki.
Pełna własność.
Bardzo atrakcyjna lokalizacja mieszkania.
Budynek znajduje się przy ulicy Czarnowiejskiej w najbliższym sąsiedztwie parku Wisławy Szymborskiej. Budynek położony jest w odległości kilkunastu metrów od parku Krakowskiego w którym zlokalizowany jest między innymi duży plac zabaw.
W sąsiednich budynkach znajduje się duża ilość sklepów w tym duży sklep sieci Lewiatan, kawiarni, restauracji i nocnych klubów. Do Rynku Głównego i na Stare Miasto około 500 metrów.
Dostępność komunikacyjną zapewnia kilka linii tramwajowych i autobusowych których przystanki zlokalizowany są w odległości kilkunastu metrów od budynku.
- Principal and Interest
- Property Tax
- HOA fee





























