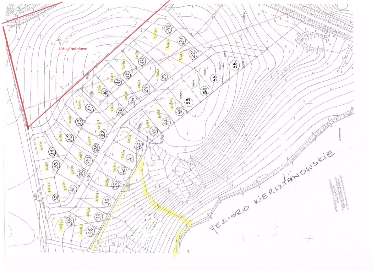
Działka hotelowa nr ewid. 326/59
Nr działki 281003_2.0009.326/59, Działka powstała w wyniku podziału działki 326/9, dla której założona jest księga wieczysta OL1M/00041156/84.
Cena działki 1 300 000 zł netto, do rozsądnej negocjacji.
Działka o powierzchni 27 878 m2 położona jest w nowopowstającym terenie zabudowy turystyczno-rekreacyjnej, przy drodze Mrągowo – Św. Lipka, na wzgórzu nad jeziorem Kiersztanowskim. Przepiękna okolica, wiele terenów niezagospodarowanych, ogólnodostępnych, idealnych do spacerów i dalszych wędrówek. Jest także wytyczony szlak kajakowy od Świętej Lipki do Mrągowa. Jezioro Kiersztanowskie czyste, nadające się do kąpieli i wędkowania. Odległość do jeziora ok. 90 m. Dostęp do jeziora drogą wewnętrzną o szer. 6 m.
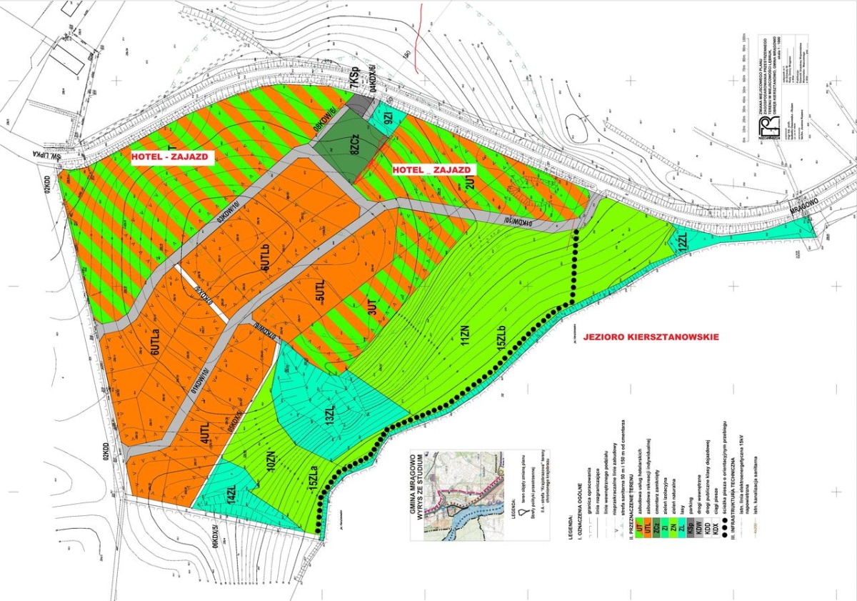
Dla całego terenu opracowany i uchwalony został Miejscowy Plan Zagospodarowania Przestrzennego. Działka oznaczona w planie symbolem 1UT przeznaczona jest w nim na cele zabudowy turystycznej i została już geodezyjnie wydzielona. Oznacza to, że natychmiast po wykonaniu projektu można przystąpić do budowy hotelu, motelu, zajazdu, zespołu domków letniskowych, campingu lub pola namiotowego.
Na terenie oznaczonym na planie 1UT minimalna powierzchnia działki określona została na 5000m2. Oznacza to, że działka może być podzielona nawet na 5 samodzielnych działek budowlanych.
Uzbrojenie terenu:
Energia elektryczna – za działką, zahaczając o północny narożnik, przebiega linia średniego napięcia 15 kV. W uliczkach osiedlowych wykonana została linia kablowa.
Woda – z własnej studni wierconej lub ze studni głębinowej, którą gmina obecnie realizuje w osiedlu Lembruk w odległości ok 100 m.
Kanalizacja sanitarna gminna ø200 została wykonana i przebiega wzdłuż północnej granicy działki. Na przyległym terenie osiedlowym wykonana została kanalizacja we wszystkich uliczkach wewnętrznych.
Obecnie działka w większości porośnięta jest samosiejką brzozową na wycinkę której nie będzie wymagane pozwolenie, Wystarczy zgłoszenie.
Fragment z planu zagospodarowania
§ 14. Ustalenia szczegółowe dotyczące terenu 1UT
1. Przeznaczenie terenu – zabudowa usług hotelarskich (hotel, motel, zajazd, camping, pole namiotowe).
2. Zasady kształtowania zabudowy kubaturowej:
1) wysokość zabudowy do trzech kondygnacji nadziemnych w tym jedna kondygnacja w dachu stromym;
2) dachy dwu lub wielospadowe o nachyleniu połaci 350 do 450 kryte dachówka ceramiczną w kolorze ceglastej czerwieni;
3) główne połacie dachu o tym samym spadku;
4) poziom rzędnej parteru nie może być wyższy niż 45 cm od poziomu terenu w najwyższym jego punkcie w obrysie budynku;
5) dla budynków parterowych dopuszcza się dachy o kącie nachylenia połaci 250.
3. Zasady zagospodarowania terenów:
1) w programie zagospodarowania działki należy uwzględnić poza zabudowa kubaturową miedzy innymi: zieleń urządzoną, place zabaw dla dzieci, małą architekturę, parkingi;
2) powierzchnia zabudowy:
– dla terenu 1UT – max 10 % powierzchni działki budowlanej (czyli prawie do 3000 m2)
3) wskaźnik intensywności zabudowy:
– dla terenu 1UT – 0,1 ÷ 0,4
4) powierzchnia terenu biologicznie czynnego:
– dla terenu 1UT min. 70% powierzchni działki budowlanej;
5) nieprzekraczalne linie zabudowy jak na rysunku planu;
6) zakazuje się stosowania ogrodzeń pełnych i z prefabrykowanych elementów żelbetowych;
7) dopuszcza się ogrodzenia do wysokości 1,50 m wykonane z materiałów tradycyjnych jak: kamień, drewno, ceramika budowlana oraz elementy kute;
8) dostępność komunikacyjna z dróg wewnętrznych 01KDW i 03KDW;
- Principal and Interest
- Property Tax
- HOA fee



















