Na sprzedaż lokal na parterze w kameralnym osiedlu w Majdanie pod Warszawą (gm. Wiązowna), zaprojektowanym z myślą o wygodzie i bezpieczeństwie. Sprawdzi się jako komfortowe mieszkanie dla seniora lub pary, a dzięki spokojnemu charakterowi osiedla i funkcjonalnemu układowi może być też dobrym wyborem pod wynajem.
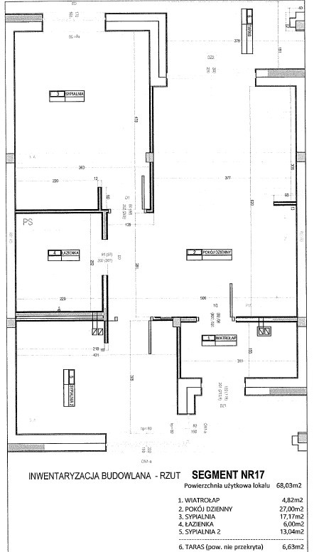
Powierzchnia użytkowa: 68,03 m², dodatkowo taras: 6,63 m².
Rozkład obejmuje: wiatrołap, salon z aneksem kuchennym, 2 sypialnie, łazienkę oraz taras.
Dużym udogodnieniem jest parterowy charakter nieruchomości – brak schodów i łatwy dostęp na co dzień. Mieszkanie ma funkcjonalny układ: salon z aneksem kuchennym to centralna część lokalu, a dwie sypialnie dają swobodę aranżacji. Drugi pokój może pełnić rolę gabinetu, pokoju dla opiekuna lub gości. Dodatkową przestrzeń zapewnia taras – idealny na odpoczynek na świeżym powietrzu.
Osiedle ma spokojny, kameralny charakter i jest nastawione na wygodę mieszkańców. W zależności od potrzeb można skorzystać z organizacji usług na miejscu – m.in. dostępu do opieki 24h, wsparcia w codziennych czynnościach, sprzątania, cateringu, zakupów czy koordynacji dodatkowych usług. To rozwiązanie, które realnie ułatwia codzienne funkcjonowanie i daje poczucie bezpieczeństwa.
Majdan i cała Wiązowna to zielona, spokojna okolica Warszawy – dobra na spacery i odpoczynek, z przyjemnym tempem życia. Jednocześnie lokalizacja ta zapewnia wygodny dojazd w stronę Warszawy oraz dostęp do pełnej infrastruktury w okolicy (sklepy, usługi, punkty medyczne).
Dla inwestora to lokal łatwy do dopasowania do aktualnych potrzeb rynku: spokojne osiedle o określonym profilu i układ salon + 2 sypialnie zwiększają elastyczność najmu (np. jedna osoba, para, dodatkowy pokój dla opiekuna lub gości). Przekłada się to na szerszą grupę potencjalnych najemców.
Zapraszam do kontaktu – chętnie udzielę szczegółowych informacji i umówię prezentację.
- Principal and Interest
- Property Tax
- HOA fee

























